Biệt thự châu Âu cổ điển
Kiểu 181: Kiểu Nhà "Tiên Cảnh Ven Đồi"

A. Cảnh quan
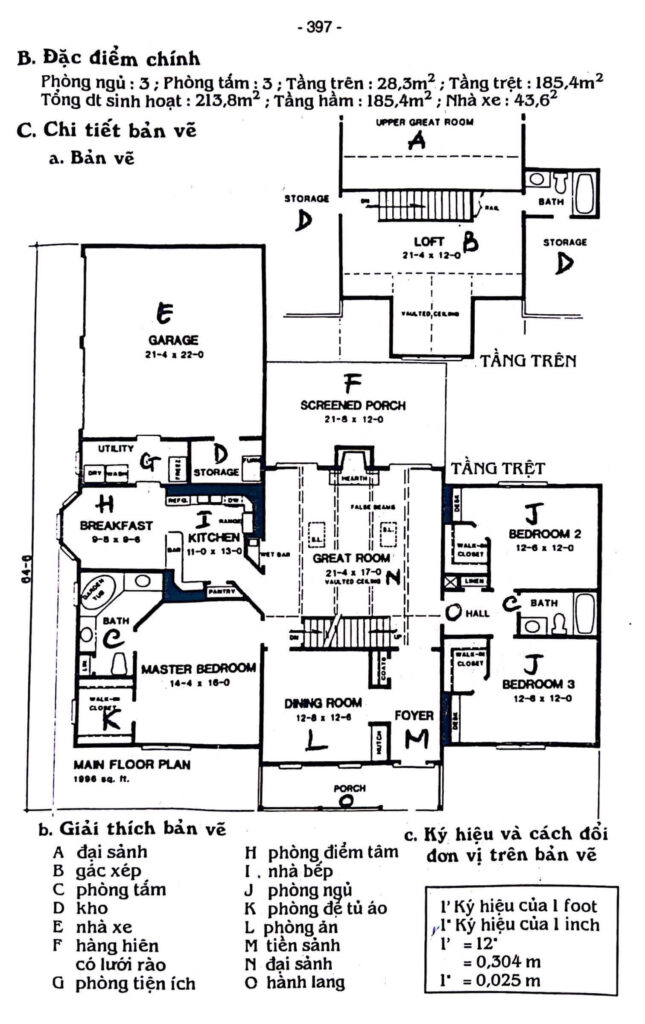
- Rất lý tưởng đối với một mảnh đất dốc, căn nhà nhiều cấp xinh đẹp này sẽ có nhiều điều kỳ thú. Đi qua lối vào có mái che nghiêm chỉnh, khu tiền sảnh sáng sủa sẽ chạy vào căn phòng khách tụt thấp. Để lộ một tấm trần kiểu vòm cao 4,10m, căn phòng khách có một lò sưởi ấm cúng, một khu vực để thiết bị giải trí xây dính tường và một cửa sổ hình hộp ở phía sau.
- Căn phòng ăn tụt thấp kế bên sẽ mở tới sàn lộ thiên và bể tắm nước phun ở phía sân sau.
- Biệt thự châu Âu cổ điển với căn nhà bếp hiện đại sẽ phô bày một trung tâm phục vụ riêng biệt với một khu vực nấu nướng và chậu rửa. Kế bên là một phòng tắm nhỏ tiện lợi và một phòng giặt ủi rộng lớn.
- Các cửa sổ hấp dẫn sẽ làm sáng khu cầu thang dẫn tới dãy phòng chính sang trọng ở tầng trên. Đi qua các cửa kép thanh lịch, căn phòng ngủ chính còn có một tấm trần kiểu vòm và một sàn lộ thiền riêng. Căn phòng tắm chính có một bồn tắm nước nóng, một gương sen có cửa sổ kính trên mái và một bồn rửa mặt kết hợp bản phản đối.
- Cả tầng hầm sáng sủa có một căn phòng sinh hoạt gia đình rộng lớn với một lò sưởi ấm cúng và lối đi ra sàn lộ thiên. Ngoài ra còn có một hầm rượu, một nhà tắm lớn và hai phòng ngủ nữa.

Biệt thự châu Âu cổ điển 182: Kiểu Nhà Nhiều Bậc Lạ Thường

A. Chi tiết bản vẽ biệt thự châu Âu cổ điển 182
- Một cầu thang vòng cung hấp dẫn tạo ra dáng điệu thanh lịch và ngầm gợi tò mò cho căn nhà hiện đại choáng ngợp này.
- Lối vào có hai cửa sẽ dẫn vào căn phòng khách sáng sủa có một vách ngăn song thừa nhìn ra căn phòng ăn chính thức ở bên dưới. Một lò sưởi trong góc sẽ sưởi ấm cả hai phòng này.
- Xuống ba bậc thang, căn nhà bếp có một quầy ăn uống hình vòng cung được hưởng ứng bằng một phòng dùng điểm tâm được đặt trong một bức tường vòng cung của các cửa sổ kính.
- Căn phòng sinh hoạt gia đình rộng lớn có một lò sưởi nằm trong góc để sưởi ấm các hoạt động trong nhà, trong khi sân lộ thiên hai tầng với một bồn nước nóng sẽ cung cấp sự giải trí ngoài trời.
- Trên lầu, dãy phòng chính độc đáo có một văn phòng nhỏ tách biệt, một bồn tắm nước xoáy, một gương sen và một mặt lát riêng.
- Chiếc cầu thang vòng cung tiếp tục dẫn lên đến một mái bằng có lan can. Khu vực tiêu khiển rộng lớn ngoài trời này sẽ được làm nổi bật bằng một lò nướng thịt khéo léo sử dụng ống khói lò sưởi.

Kiểu 183: Kiểu Nhà Mỹ Quan Trên Khu Đất Dốc

A. Miêu tả biệt thự châu Âu cổ điển 183
- Kiểu thiết kế theo lối thôn quê của Pháp rất phù hợp với một khu đất hẹp có dốc sát sườn. Một sân thượng nhìn ra phía sau, sàn lộ thiên và ban công sẽ chiếm dụng phong cảnh.
- Các cửa sổ con và các ô kính cố định ở hai bên sẽ bao quanh cửa ra vào sặc sỡ và làm sáng khu tiền sảnh cao hai tầng. Thẳng tới phía trước, các căn phòng khách và phòng ăn được xác định bởi các cây cột uy nghi. Một lò sưởi sẽ sưởi ấm khu vực này, trong khi đó hai bộ cửa Pháp sẽ có lối đi ra sàn lộ thiên.
- Căn nhà bếp kiểu vòm có một phòng chứa thức ăn và một cái bàn để thức ăn xây dính tường. Một cửa sổ đỉnh tròn sẽ làm tăng vẻ duyên dáng và làm sáng thêm căn phòng dùng điểm tâm cùng căn.
- Một phòng ngủ dành cho khách rộng với phòng tắm riêng sẽ hoàn tất tầng chính.
- Trên lầu, dãy phòng chính sang trọng có một tấm trần kiểu vòm cao ngất và một cửa sổ con hình bán nguyệt. Căn phòng tắm chính kiểu vòm có một bồn tắm lớn, kiểu bậc thang, một gương sen, một phòng để tủ áo, một nhà vệ sinh riêng và một bồn rửa mặt kết hợp bàn phản đối.
- Căn phòng ngủ thứ hai có tấm trần kiểu vòm có một lò sưởi và một ban công riêng. Ngoài ra còn có một căn phòng ngủ thứ ba, một phòng tắm lớn và một phòng giặt ủi nhỏ.
- Tầng hầm sáng sủa có một phòng sinh hoạt gia đình với lối đi tới một sân thượng rộng lớn. Bao quanh tầng hầm là một căn phòng ngủ yên tĩnh, một phòng giặt ủi thứ hai và một nhà xe có lối ra vào bên cạnh.

Biệt thự châu Âu cổ điển 198: Kiểu Nhà Truyền Thống Thanh Lịch

A. Cảnh quan
- Căn nhà kiểu truyền thống này rất phù hợp với một mảnh đất trong góc, với một mặt tiền kỳ lạ và một nhà xe tích hợp ở phía sau.
- Các cửa sổ cao, cửa sổ trên mái thanh lịch và một cổng vòm ở phía trước với mái che tạo điểm nhấn cho lối vào và khu tiền sảnh.
- Bên phải của khu tiền sảnh, căn phòng ăn chính thức có tủ đựng bát đĩa tích hợp vào tường và tận hưởng cảnh nhìn ra cổng vòm phía trước.
- Khu đại sảnh rộng lớn có cửa sổ kính trên mái, một quầy rượu, tấm trần kiểu vòm cao 4,88m, một lò sưởi hấp dẫn và lối đi dẫn đến hàng rào trong phía sau.
- Căn nhà bếp có một phòng chứa thức ăn và một quầy ăn uống dẫn tới khu vực dùng điểm tâm được xây kè ra. Bên cạnh đó là một phòng tiện ích rộng rãi với lối vào nhà xe.
- Biệt thự châu Âu cổ điển 198 với căn phòng ngủ chính có một phòng để tủ áo và một nhà tắm với một bồn tắm rộng trong góc và các bàn trang điểm kép.
- Hai phòng ngủ phụ có các phòng để tủ áo lớn, các bàn viết xây dựng vào tường và có lối đi trực tiếp đến một phòng tắm lớn khác.
- Trên lầu, một căn gác xếp sẽ nhìn ra khu đại sảnh và có thể được sử dụng làm một phòng ngủ phụ trội hoặc một khu vực giải trí.

Kiểu 200: Kiểu Nhà Được Thiết Kế Các Tầng Rộng Và Thoáng

A. Cảnh quan biệt thự châu Âu cổ điển 200
- Các căn phòng rộng thoáng được tô điểm bằng các cửa sổ kỳ diệu sẽ làm nổi bật căn nhà rộng lớn với bốn phòng ngủ.
- Khu tiền sảnh hai tầng tỏa sáng với một cửa sổ vòm ở phía trên. Bên trái là căn phòng khách dẫn đến căn phòng sinh hoạt gia đình. Một lò sưởi hấp dẫn và các cửa sổ nhìn ra một sân thượng phía sau tạo nên điểm nhấn cho căn phòng sinh hoạt gia đình.
- Căn nhà bếp được đặt ở trung tâm, phục vụ cả phòng ăn chính thức và phòng ăn nhỏ, với tầm nhìn ra căn phòng sinh hoạt gia đình. Cửa kính trượt trong căn phòng ăn nhỏ mở ra một sân thượng xinh xắn.
- Trên lầu, dãy phòng chính có một cửa sổ vòm và một phòng để tủ áo với khu vực trang điểm. Căn phòng tắm chính riêng biệt có một bồn rửa mặt kết hợp bàn phấn đôi, một bồn tắm xoáy có cửa sổ kính trên mái và một gương sen riêng.
- Ba căn phòng ngủ còn lại sử dụng chung một phòng tắm khác, có cửa sổ kính trên mái.

Biệt thự châu Âu cổ điển và biệt thự bán trên thực tế
Bán Biệt Thự Thảo Điền Chính Chủ
150 Tỷ VNDBán Biệt Thự Thảo Điền Chính Chủ: Lựa Chọn Đẳng Cấp cho Cuộc Sống Lý Tưởng Bạn đang tìm kiếm một ngôi nhà biệt lập tại khu vực Thảo Điền, quận 2, TP.HCM? Đừng bỏ lỡ cơ hội sở hữu một căn biệt thự đẹp và đẳng cấp tọa lạc tại khu biệt thự Phú […]
King Crown Village Thảo Điền
130 Tỷ VNDKing Crown Village Thảo Điền – đẳng cấp và sang trọng Biệt thự đẳng cấp tại Nguyễn Văn Hưởng, King Crown Village với 7 căn biệt thự, trong đó 4 căn đã được sử dụng. Biệt thự với nhiều tiềm năng khai thác lý tưởng cho phòng khám cao cấp, spa, hoặc văn phòng đại […]
Biệt thự khu Lan Anh Quận 2 cần bán – 1 căn góc gần sông Sài Gòn Vị trí: Căn góc 2 mặt tiền đường trục chính trong khu compound Vip nhất khu Thủ Thiêm, có bến Du Thuyền, có cổng bảo vệ an ninh 24/7, gần sông Sài Gòn, nhà hàng, tiện ích hồ […]
Bán biệt thự Thảo Điền Q2
130 Tỷ VNDBán biệt thự Thảo Điền Q2 Biệt thự mới 100%, nằm trong diện tích khuôn viên đất: 755 m2, diện tích sàn xây dựng 405 m2 Tọa lạc an cư: Nhà ở vị trí mặt tiền đường chính huyết mạch khu compound cao cấp Thảo Điền 1, và đối diện công viên gia chủ tập […]
Biệt thự Thảo Điền 1 – Compound Thao Dien 1
160 Tỷ VNDBán biệt thự Thảo Điền, trong khu compound an ninh tuyệt đẹp đường Nguyễn Văn Hưởng. DT 613m2 (18x34m), giá bán 70 tỷ.
Biệt thự hồ bơi sân vườn
150 Tỷ VNDBiệt Thự Hồ Bơi Sân Vườn Biệt Thự Sân Vườn Tại Thảo Điền – Sở Hữu Vị Trí Đắc Địa! Cơ hội sở hữu căn biệt thự sân vườn tại Thảo Điền – nằm trên thế đất vuông vức, diện tích khuôn viên thực tế khoảng 560m2 (ngang 22m x sâu 23m), sổ công nhận […]
Bán biệt thự Eden ven sông
100 Tỷ VNDBán biệt thự Eden ven sông Vị trí thuộc compound trên đường Nguyễn Văn Hưởng, Thảo Điền, Quận 2 Diện tích khuôn viên đất thực tế: hơn 608m² + DT Trong sổ công nhận: 400m² + DT Ngoài sổ (lấn sông): 208m² DT Xây dựng 123,9m²; diện tích sàn sử dụng: được công nhận 341,4m2 […]
Bán biệt thự Thảo Điền trong khu compound
150 Tỷ VNDBán biệt thự Thảo Điền trong khu compound Diện tích khuôn đất 649m² (18×36)m, với hồ bơi và sân vườn rộng rãi, cây xanh, thảm cỏ và hệ thống chiếu sáng quanh nhà. Diện tích sử dụng 611m², kết cấu 1 trệt, 1 lửng, 2 lầu, trần bê tông cốt thép mái ngói, có 5 […]
Bán đất mặt tiền đường Nguyễn Văn Hưởng
150 Tỷ VNDBán đất mặt tiền đường Nguyễn Văn Hưởng – Diện tích: 639m² (17 x 36)m.– Mục đích sử dụng: Đất thổ cư.– Thời gian sử dụng đất: Lâu dài.– Mô tả: bán đất mặt tiền đường Nguyễn Văn Hưởng Khu đất có 1 mặt tiền đường Nguyễn Văn Hưởng (lộ giới 20m); 1 mặt tiền […]
ĐẶT LỊCH XEM ĐẤT – BIỆT THỰ THẢO ĐIỀN LIÊN HỆ
Hotline Mr Thọ 0903771500 (Zalo – Viber – Whatsapp)
Email: tho8888@gmail.com
Biệt thự Thảo Điền – Biệt thự Riviera – Biệt thự Sala Đại Quang Minh
Bán đất biệt thự Thảo Điền Quận 2 – Những mẫu nhà biệt thự – Kiểu nhà vườn đẹp – Nhà phong cách châu Âu cổ điển








